OFERTA

Nowe projekty w wyjątkowych lokalizacjach

DOSKONAŁA LOKALIZACJA PRZY LESIE

Ekskluzywane domy, bliźniak w Niemczu

ul.Tęczowa , Niemcz 86-032, gm. Osielsko

domy-blizniak- w-niemczu-1 domy-blizniak- w-niemczu-2 domy-blizniak- w-niemczu-33 domy-blizniak- w-niemczu-37 domy-blizniak- w-niemczu-39 domy-blizniak- w-niemczu-43 domy-blizniak- w-niemczu-44 domy-blizniak- w-niemczu-32 domy-blizniak- w-niemczu-36 domy-blizniak- w-niemczu-7 domy-blizniak- w-niemczu-6 domy-blizniak- w-niemczu-127 domy-blizniak- w-niemczu-126

Infrastruktura, instalacje

wodna – z sieci wodociągowej ,kanalizacyjna sanitarna ,kanalizacja deszczowa, elektryczna, c.o i c.w.u. – pompa ciepła typu powietrze – woda wraz z zasobnikiem c.w.u. firmy DIMPLEX , wentylacja grawitacyjna, sieć telekomunikacyjna, podgrzewanie podłogowe, dodatkowe grzejniki elektryczne w łazienkach.

Instalacje dodatkowe

Wyprowadzenie instalacji wodnej i elektrycznej na podłączenie podlewania ogrodowego, wyprowadzenie instalacji elektrycznej pod klimatyzację w salonie i sypialni , dodatkowa instalacja trójfazowa w garażu np. na ładowanie samochodu elektrycznego oraz na tarasie na podłączenie np. jacuzzi , rozprowadzenie instalacji natryskowej w ogrodzie (możliwe zdalne starowanie) , led-owe oświetlenie zewnętrzne domu , instalacja pod monitoring oraz alarm, RTV, internet , instalacja pod SMART READY (inteligentne sterowanie), automatyczne sterowanie bramą wjazdową i garażową , domofon. (możliwe zdalne sterowanie instalacji)

Budynek energooszczędny

Eleganckie domy dwurodzinne, należący do kolekcji: wille i rezydencje usytuowane w spokojnej części centrum Niemcza z zalesieniem. Dwa pełne piętra i optymalnie zakomponowany układ funkcjonalny zapewniają maksymalny poziom komfortu. Wykończenie elewacji to efektowne połączenie jasnego tynku ze stolarką w stalowym kolorze.

Nowoczesnym detalem są oszklone balustrady, które wraz z licznymi przeszkleniami dodają wyjątkowej elegancji. W budynku przewidziano dwa osobne mieszkania po 162,14 m2 plus poddasze 60 m2 i każde z nich dysponuje jednostanowiskowym garażem (drugie stanowisko zewnętrzne na terenie zamkniętym domu), przynależna działka do każdego z mieszkań po 525 m2/584 m2. Mieszkania posiadają niezależne wejścia główne, ogród oddzielony ogrodzeniem metalowym z nasadzeniami. Strefy wejściowe zostały zadaszone poprzez zaprojektowany na piętrze balkon. W podobny sposób został osłonięty duży taras od strony ogrodu

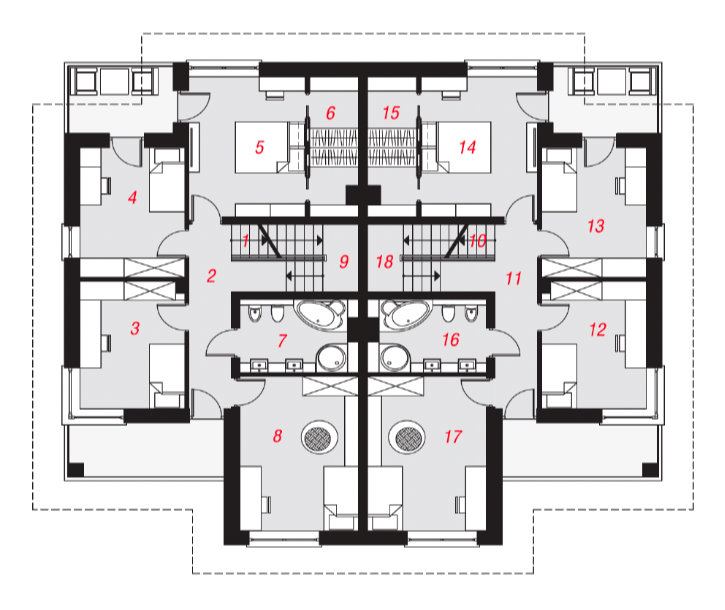
Wewnątrz każdego mieszkania znajduje się przestronna oraz pełną naturalnego światła strefa dzienna, z dwoma wyjściami na narożny taras. Salon wraz z kominkiem, w połączeniu z jadalnią i bezpośrednim wyjściem na taras, stanowi miejsce relaksu z uwagi na duże przestronne oszklenia z widokiem na ogród i bezpośrednim wyjściem na duży taras, na którym jest przygotowana instalacja pod podłączenie jacuzzi, a w salonie i sypialni pod klimatyzację.

Duża jadalnia z przestronnym widokiem na ogród i bezpośrednim wyjściem na taras, w połączeniu z kuchnią i dodatkowo narożnym oknem, otwierającym widok na strefę wejściową oraz ogród, to jasne i wygodne miejsce. Optymalnie zaprojektowany układ funkcjonalny kuchni, posiada możliwość na zabudowę obszernych blatów roboczych oraz bardzo praktycznej wysokiej zabudowy, która efektywnie zagospodaruje przestrzeń wraz z dużą ilością miejsca do przechowywania.

W podpiwniczonej kotłowni z pompą ciepła przewidziano możliwość zagospodarowania pralni i pomieszczenia technicznego. Z korytarza, w którym istnieje możliwość montażu przestronnej szafy ubraniowej, dostępna jest łazienka z prysznicem, w samym wiatrołapie jest wygospodarowane miejsce na zabudowę dużej szafy. Na piętrze mieszczą się cztery ustawne pokoje, wśród nich duża sypialnia z własną garderobą i wyjściem na przestronny balkon od strony ogrodu, który połączony jest również z drugą sypialnią. W pobliżu schodów usytuowano dużą łazienkę, przy której znajduje się wyjście na duży balkon od strony frontowej budynku.

Okna trójszybowe na niemieckich profilach PCV, w kolorze grafitowym, parapety wewnętrzne z granitu w kolorze jasnym, parapety zewnętrzne z blachy aluminiowej powlekanej w kolorze grafitowym, zewnętrzne automatyczne rolety antywłamaniowe na wszystkich oknach, zewnętrzne ogrodzenie domu panelowe, brama wjazdowa i garażowa automatyczne sterowana, furtka z domofonem, wjazd do garażu, taras, schody tarasowe, wejście zewnętrzne – utwardzony ekskluzywną płytą tarasową Magna, balustrady zewnętrzne szklane.

W ogrodzie występują: nieliczne zadrzewienia: drzewa iglaste i liściaste, trawa, nasadzenia.

Pod indywidualne zamówienie

Basen zewnętrzny, fotowoltaika, jacuzzi oraz pomieszczenie gospodarcze na ogrodzie 10 m2, wbudowanie podziemnego pojemnika na deszczówkę, wykończenie pod klucz wraz z projektem.

POWIERZCHNIE

Wymiary dla jednego budynku dwurodzinnego ( szeregowego )
Wymiary dla jednego mieszkania w budynku szeregowym (dwurodzinnym)

TECHNOLOGIA

PRZYKŁADOWE WIZUALIZACJE

Tęczowa zdjęcie S Tęczowa zdjęcie R Tęczowa zdjęcie AC Tęczowa zdjęcie W IMG-20221116-WA0046 IMG-20221116-WA0020(1) IMG-20221116-WA0071(1) Tęczowa 5 IMG-20221116-WA0014(1) Tęczowa zdjęcie G IMG-20221116-WA0024(1) Tęczowa zdjęcie X Tęczowa zdjęcie I Tęczowa zdjęcie V Tęczowa zdjęcie K Tęczowa zdjęcie AE Tęczowa zdjęcie P Tęczowa zdjęcie O Tęczowa zdjęcie N Tęczowa zdjęcie M Tęczowa zdjęcie Ł image Zdjęcie Niemcz 5 image (2) zd 1 domy-blizniak- w-niemczu-128 domy-blizniak- w-niemczu-125 domy-blizniak- w-niemczu-124 domy-blizniak- w-niemczu-123 domy-blizniak- w-niemczu-122 domy-blizniak- w-niemczu-121 domy-blizniak- w-niemczu-116 domy-blizniak- w-niemczu-117 domy-blizniak- w-niemczu-118 domy-blizniak- w-niemczu-119 domy-blizniak- w-niemczu-120 domy-blizniak- w-niemczu-114 domy-blizniak- w-niemczu-113 domy-blizniak- w-niemczu-111 domy-blizniak- w-niemczu-109 domy-blizniak- w-niemczu-103 domy-blizniak- w-niemczu-105 domy-blizniak- w-niemczu-104 domy-blizniak- w-niemczu-108 domy-blizniak- w-niemczu-106 domy-blizniak- w-niemczu-102 domy-blizniak- w-niemczu-101 domy-blizniak- w-niemczu-96 domy-blizniak- w-niemczu-95 domy-blizniak- w-niemczu-81 domy-blizniak- w-niemczu-92 domy-blizniak- w-niemczu-88 domy-blizniak- w-niemczu-84 domy-blizniak- w-niemczu-83 domy-blizniak- w-niemczu-76 domy-blizniak- w-niemczu-70 domy-blizniak- w-niemczu-71 domy-blizniak- w-niemczu-75 domy-blizniak- w-niemczu-68 domy-blizniak- w-niemczu-67 domy-blizniak- w-niemczu-66 domy-blizniak- w-niemczu-64 domy-blizniak- w-niemczu-58 domy-blizniak- w-niemczu-60 domy-blizniak- w-niemczu-63 domy-blizniak- w-niemczu-57 domy-blizniak- w-niemczu-56 domy-blizniak- w-niemczu-55 domy-blizniak- w-niemczu-54 domy-blizniak- w-niemczu-53 domy-blizniak- w-niemczu-52 domy-blizniak- w-niemczu-51 domy-blizniak- w-niemczu-50 domy-blizniak- w-niemczu-49 domy-blizniak- w-niemczu-38 domy-blizniak- w-niemczu-20

LOKALIZACJA INWESTYCJI

W pobliżu znajdują się:

Realizujemy projekty z pasją i precyzją